
Дачный дом в 2 этажа очень вместим и удобен и к тому же почти без стен. Такой дачный дом просто и доступен в строительстве, нежели обычные дома, а обойдется значительно дешевле, т.к. для его строительства потребуется меньше материалов.
Недавно мы писали про небольшой дачный дом теремок без стен, а в этой статье речь пойдет строительстве дачного домика большей площади.
Рис.1 Внешний вид 2-х этажного дачного дома без стен
Дачный домик состоит из двух комнат и кухни; кроме того, есть веранда, лоджия, кладовка. Строится он из дешевых строительных материалов. Окна в комнатах широкие, пропускают много света и дают хороший обзор территории сада.
Первый этаж занимают комната 15 м2, кухня 4 м2 и лестница в мансарду, площадь которой 12 м2; здесь же расположена небольшая кладовая (2 м ), образованная стеной прихожей и скатом крыши. Вход в нее можно сделать как из самой прихожей, так и снаружи, с веранды.
Рис.2. Разрез и основные конструктивные элементы 2-х этажного дачного дома:
1- Подъемная веранда, 2 - карниз-свес, 3 - ограждение лоджии, 4 -крыша, 5 - конек , 6- ограждение люка в полу мансарды, 7 - дверь, 8 - лестница, 9 -перегородка, 10 - лоджия, 11- ограждение веранды.
ФУНДАМЕНТ
Его конструкция зависит от рельефа местности и свойств грунта. У этого дома фундамент столбчатого типа. Для его изготовления могут быть применены самые различные материалы: деревянные обожженные или просмоленные столбы, кирпич, бетон, бутовый камень, металлические трубы, асбестоцементные трубы с заполнителем и т. д.
В нашем варианте использованы старые канализационные трубы диаметром 100 мм и длиной 1200-1500 мм.
Выбранный под фундамент участок размечается согласно рис. 3. В намеченных под опоры местах бурятся скважины на глубину 700-800 мм (ручной бур 0 100 мм можно купить в хозяйственных магазинах).
Рис.3. Столбчатый фундамент дачного домика:
1 - столбы (трубы диаметром 100 мм), 2 - несущие прогоны (стальные трубы диаметром 100 мм), 3 - бетон М100, 4 - кирпичная кладка, 5 - гидроизоляция (два слоя рубероида), 6 - закладная деталь, 7 - несущий прогон (деревянный брус сечением 50Х 150 мм).
+ Фрагмент лестницы и кухни: 1- перегородка кухни, 2 - лестница, 3 - ограждение люка.
По периметру фундамента вбиваются колышки, и по уровню натягивается шнурка высоте 300 мм от земли (если участок на склоне, то считать следует от самого высокого места). В подготовленные отверстия опускаются трубы и выравниваются в горизонтальной плоскости с помощью подсыпки щебнем.
После выравнивания всех труб готовится бетой и заливается в них на 300 - 400 мм (3 - 4 лопаты бетона в каждую трубу) - для увеличения площади опоры.
В качестве несущих балок в нашем случае использованы трубы 0 100 мм, которые крепятся к столбам трехмиллиметровой отожженной стальной проволокой.
Если фундамент будет выполнен из бетонных подушек, то на них выкладываются столбики из красного кирпича, а сверху - гидроизоляция из двух слоев рубероида, на которую кладутся, обработанные антисептиком, прогоны шириной 150 мм - здесь будет лежать каркас домика.
КАРКАС
Изготовлен из брусков сечением 150 х 50 мм и длиной до 4,5 м. Из них собирают семь рам, составляющих несущий каркас дома. В трех рамах, образующих фасады, укрепляют бруски, к которым крепятся оконные и дверные блоки. Остальные четыре имеют совершенно одинаковую конструкцию. Каждую раму собирают на земле по шаблону.
Рис.4. Каркас садового домика:
1 - несущие прогоны, 2 - наклонные балки стен, 3 - бруски оконных блоков, 4 - балка перекрытия первого этажа, 5 - балка перекрытия мансарды, 6 - стропила, 7 - бруски дверных блоков, 8 - нижняя балка рамы, 9 - коньковая доска.
Рис.5. Каркас садового домика:
I - рама главного фасада, II - типовые промежуточные рамы, III - фасадная рама лоджии, IV - рама заднего фасада.
Следующая операция - сборка домика. Подготовив материал, для обрешетки боковых стен и выбрав безветренную погоду (что немаловажно), на несущие прогоны устанавливают первую раму в вертикальном положении и временно крепят ее с помощью подпорок. Затем аналогично устанавливают остальные на одинаковом расстоянии друг от друга; их выравнивают и скрепляют между собой коньковой доской.
Следующая операция - обрешетка каркаса дачи: Для обрешетки можно использовать необразные доски, которые прибиваются к брускам каркаса. Доски прибивают с отступом друг от друга в 200-300 мм, что не сказывается на прочности конструкции и удобно при работе, так как обрешетка будет выполнять роль лестницы.
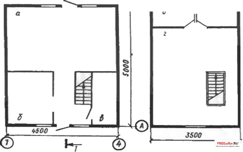
Рис. 6. Садовый домик
(А - планировка, Б - фасад 1 - 4): а - жилая комната, б - кухня, в - кладовая, г - комната в мансарде, д - лоджия (2 м2).
Доски обрешетки выпускают за крайние рамы не менее чем на 300 мм. Затем к свесам обрешетки прибивают бруски одинаковой толщины, служащие для крепления декоративной облицовки; она закроет с нижней (видимой) стороны доски обрешетки. Облицовку необходимо выполнить из подогнанных фальцованных досок или реек.
После этого можно приступить к покрытию крыши.
КРОВЛЯ
Крыша и стены дачи в нашем случае покрыты шифером, но может быть применен самый разнообразный кровельный материал: черные или оцинкованные стальные листы, черепица, тес и т. д.
Шифер имеет ряд достоинств - долговечен, дешев, не слишком нагревается на солнце, его можно свободно приобрести. Каждый скат крыши домика покрыт шифером в одни ряд.
Рис. 7. Подготовка к раскладка волнистых асбестоцементных листов покрытия.
(А - подготовка листов со срезанными углами, Б - порядок укладки):
1 - горизонтальное направление, 2 - вертикальное направление.
Чтобы встык крыши со стеной зимой не задувало снег, верхнюю часть дома покрываем полиэтиленовой пленкой для теплиц. Пленку можно закрепить обыкновенными канцелярскими кнопками. Поверх пленки и укладывается шифер. Он крепится специальными гвоздями с большими шляпками (шиферные гвозди); если таких нет, то можно обыкновенными, с шайбами и резиновыми прокладками.
СТЕНЫ
Их облицовку шифером можно производить двумя способами - в разбежку, когда продольные кромки находятся в разных местах, или с совмещением кромок по всей длине. Последнее покрытие считается более красивым.
При покрытии в разбежку листы кладутся в следующей последовательности на расстоянии 60 - 70 мм ниже уложенной обрешетки строго горизонтально укрепляют доску, позволяющую уложить первый ряд. Листы кладут с перекрытием на одну волну и затем крепят шиферными гвоздями, предварительно просверлив в шифере под них отверстия. Точно так же укладываются остальные ряды. Необходимо рассчитывать раскладку крыши, в этом случае зазор стыка будет минимальным.
Покрытие с совмещением продольных кромок требует обязательной подготовки листов, заключающейся в срезке углов. В зависимости от величины нахлеста листов определяют и размеры срезаемых углов. Конкретный пример укладки с совмещением продольных кромок показан на рисунке. Подготовленные листы укладывают в следующей последовательности. Точно по ширине кладут лист, помеченный цифрой 1, прибивают его с левой стороны; затем на него последовательно укладывают листы, помеченные цифрой 2. Эти листы должны перекрывать кромку лежащего ниже листа всем своим срезанным углом. Далее укладывают второй ряд, начиная с листа 3, и т. д.
ОКНА И ДВЕРИ
После того как домик покрыт, приступают к навеске и подгонке окон и дверей. Их можно заказать в столярной мастерской по подготовленным вами эскизам или, если есть навыки в столярной работе, изготовить самому. Размеры окон и дверей показаны на рисунках.
ПОЛ
Настелен из ДСП первого сорта. Для этого предварительно изготовлен черный пол из досок равной толщины, которые крепятся к основаниям каркасов. Доски черного пола кладутся с зазором в 100 - 150 мм. Затем на него укладываются плиты ДСП (предварительно обработанные олифой) и крепятся к черному полу гвоздями.
Можно сделать пол из шпунтованных досок или полового теса. Пол из теса можно покрыть древесноволокнистой плитой ДВП, что придает ему после окраски монолитность.
ЛЕСТНИЦА В МАНСАРДУ
Далее приступаем к изготовлению лестницы. Лестница опирается на балку перекрытия четвертой рамы. В балке перекрытия третьей рамы выпиливают часть бруса на ширину лестницы и приколачивают два бруса такого же сечения между средними балками второго и четвертого каркасов; к ним же крепят обрезанные концы балки третьего каркаса, образующие люк на втором этаже.
Пол верха изготавливается аналогично полу первого этажа. На лоджии пол стелется из теса. Его необходимо выполнить с небольшим уклоном наружу - для слива дождевой воды. Поверх досок в нашем случае сделано покрытие лоджии оцинкованным кровельным железом. Края кровельного железа загнуты на 50 мм и прибиты к стенам лоджии.
Теперь необходимо изготовить ее ограждение. Оно может быть как из дерева, так и из металла. После этого подогнанными досками зашиваются боковые стены и потолок лоджии.
Потолок первого и второго этажей выполняют из листов фанеры или ДВП. Листы потолка раскраивают так, чтобы их стыки приходились на балки каркаса.
ОТДЕЛКА
Перегородки выполнены из ДСП второго сорта. В местах стыковки листов поставлены бруски сечением 50 х 50 мм. Перегородки можно выполнить и из досок, но это более трудоемко.
ОБИВКА СТЕН
Здесь можно применять различные материалы: ДСП, ДВП, фанеру, доски, сухую штукатурку и т. д. Годятся и обрезки этих материалов, но в этом случае будет необходимо дополнительно устанавливать бруски 50Х 50 мм и к ним крепить обрезки облицовочного материала.
Перед покраской стены предварительно шпаклюют. Если предполагается использовать обои, то все поверхности прежде оклеивают бумагой.
Пол и потолок по периметру обиваются плинтусами, а двери и окна наличниками.
Внутренняя отделка и покраска могут быть выполнены на любой вкус. Но если пол выполнен из ДСП или обит ДВП, то лучше применять для окраски масляную краску, предварительно хорошо проолифив листы пола.
ВЕРАНДА
Может быть как стационарная, так и в виде подъемной площадки. Последняя изготовляется в форме трапеции, повторяющей очертания фасада до уровня второго этажа. Крепление к стене домика шарнирное, на больших петлях. Ограждение и лестница в этом случае выполняются съемными усами, а двери и окна - наличниками.
А. и В. ГРЯЗНОВЫ, М. КОРОБКОВ, И. БЛАТОВ из г. Кстово Нижегородской области