Журнальный столик из фанеры

  • Опубликовано: 13 октября 2018

Журнальный столик из фанеры


Делаем столик из фанеры своими руками. Подробные чертежи для изготовления.


Такой журнальный столик под силу сделать своими руками любому мастеру. Единственный материал для столика это фанера, в результате получим простой красивый и самое главное функциональный журнальный столик, который украсит любой интерьер.


Размеры столика В-490 мм, Ш-700 мм, Г-500 мм.


Теперь начнём всё по порядку. Столик из фанеры - 3D модель в программе Компас

Материалы и инструменты

Для изготовления такого столика нам понадобится

  • фанера толщина 10 мм;
  • электролобзик, либо ручной (школьный);
  • клей ПВА;
  • наждачная бумага;
  • краска, либо лак на ваш выбор.

Изготовление столика

Сам стол я не делал, а лишь разработал модель в программе Компас-3D, поэтому конечный результат вы увидите только после того как соберёте стол во едино.

Я же даю всё необходимые чертежи с размерами и все необходимые данные для создания такого журнального столика.

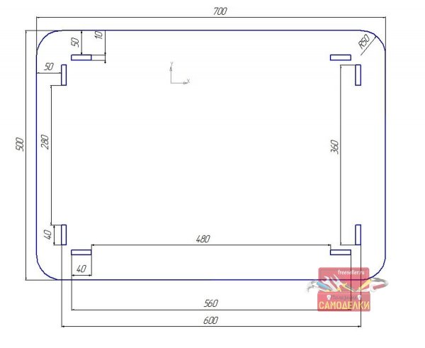
Для такого столика нам понадобиться всего 1 м2 фанеры толщиной 10 мм. Столик из фанеры - чертежи

Для начала нужно перенести все размеры с чертежей на фанеру, конечно это не самый быстрый способ, но не менее эффективный. Естественно такой способ более трудоёмкий, но зато для его реализации понадобится минимум инструмента, всего-то карандаш, угольник и линейка. Столик из фанеры - чертежиСтолик из фанеры - чертежи

Чертежи для переноса на фанеру

Для счастливых обладателей принтеров есть более простой вариант переноса размеров на фанеру. Нужно распечатать все нужные чертежи, и приклеить их к фанере, после чего всё вырезать по контуру распечатки. Для того чтобы распечатать все чертежи, нужно установить на свой ПК программу Компас-3D, и с помощью неё распечатать всё. Процесс установки программы и печати описан в моей предыдущей статье, можно посмотреть здесь.

Можно распечатать все детали на одном листе.

Чертеж журнального столика

Столик из фанеры - чертежиСтолик из фанеры - чертежи


Файл для скачивания:

Чертеж журнального столика из фанеры.frw Скачать файл:
chertezh-zhurnalnogo-stolika-iz-fanery.zip [9,42 Kb] (cкачиваний: 239) .zip

Верхняя крышка журнального столика

Можно распечатать крышку стола отдельно. Столик из фанеры - чертежиСтолик из фанеры - чертежи


Файл для скачивания

Верхняя крышка.frw

Скачать файл:
verhnjaja-kryshka.zip [5,24 Kb] (cкачиваний: 203) .zip

Полка журнального столика

Полку распечатать отдельно. Столик из фанеры - чертежи


Файл для скачивания

Полка.frw

Скачать файл:
polka.zip [4,83 Kb] (cкачиваний: 204) .zip

Ноги журнального столика

Ноги распечатать отдельно - 4 экземпляра Столик из фанеры - чертежиСтолик из фанеры - чертежи


файл для скачивания

Ноги.frw

Скачать файл:
nogi.zip [5,15 Kb] (cкачиваний: 212) .zip

Ну и конечно же есть самый простой способ получить нужные готовые детали для сборки столика - это вырезание деталей с помощью ЧПУ станка. Все у кого есть возможность сделать это с помощью ЧПУ станка, готовые детали получат в считанные минуты.


Не зависимо, какой из способов вырезания деталей вы выбрали,у вех в конечном итоге есть нужные нам заготовки. Теперь можно смело шкурить все детали наждачной бумагой и можно приступать к склейке столика. Перед склейкой рекомендую собрать столик без клея, для того чтобы проверить всё ли подходит, и самое главное определить очерёдность сборки всех деталей. Все стыки хорошо промазывайте клеем ПВА, либо любым другим клеем который предназначен для склеивания дерева.

  Столик из фанеры - 3D модель в программе КомпасСтолик из фанеры - 3D модель в программе КомпасСтолик из фанеры - 3D модель в программе КомпасСтолик из фанеры - 3D модель в программе КомпасСтолик из фанеры - 3D модель в программе КомпасСтолик из фанеры - 3D модель в программе Компас


После склейки и высыхания нужно убрать лишний клей на стыках,и пройтись по тем местах наждачной бумагой. Теперь наш столик готов к покраске. Тут выбор краски, лака и их цвета остаётся за вами.


Вот такой простой, прочный, легкий и элегантный журнальный столик можно сделать за пару вечеров в домашней мастерской с минимальным инструментом.


Полка в столике как раз предусмотрена для газет и журналов. Также столик можно использовать как обеденный, поставив его в комнате, либо листать любимые журналы с чашечкой кофе у столика вечером. Думаю, тут каждый сам для себя выберет область применения такого столика.

  Столик из фанеры - 3D модель в программе Компас

Всем спасибо за внимание,удачных вам самоделок и реализации всех планов.



0

комментариев

7 088

просмотров

Похожие самоделки

Имя:*
E-Mail:


Песочница RSSРеклама на сайтеFreeseller.ru - Полезные самоделки
Copyright © 2008-2025