
Конструкция данного ветряка отличается высокой технологичностью, отсутствием дефицитных материалов и минимальной потребностью в механической обработке деталей, что несомненно упрощает его изготовление своими руками. К несомненным достоинствам нужно отнести оригинальное решение автоматической установки лопаток ротора в зависимости от скорости ветра. Двигатель можно использовать в качестве привода генератора или насоса. При скорости ветра до 30 км/ч его мощность составит около 700 Вт.
Лопасти ротора ветряного двигателя делаются из двухмиллиметровой фанеры или жести толщиной 0,5-0,8 мм на деревянном или металлическом каркасе.
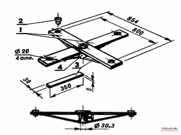
Верхняя и нижняя крестовины крепления лопаток ротора изготавливаются из стальной полосы толщиной 5 мм и собираются на сварке. Нижняя крестовина для придания ей большей жёсткости усиливается стальными 5-мм подкосами, которые привариваются к ней снизу. Крестовины крепятся на валу двигателя стопорными винтами М8 во втулках крестовин.
Автомат установки лопаток предназначен для обеспечения относительно постоянной скорости вращения ротора вне зависимости от силы ветра. Он состоит из трёх частей - крестовины, тяги и пружины.
Принцип действия ветряка автомата очень прост. Набегающий поток ветра раскручивает ротор. При небольших значениях скорости ветра пружина автомата, сжимаясь, установит лопатки ротора в положение, обеспечивающее максимальное использование силы ветра (рис. 1 А).
По мере нарастания скорости вращения ротора при усилении ветра тяги, выполняющие одновременно функции грузов-балансиров, под действием центробежной силы начинают разворачивать лопатки ротора, меняя угол их установки (рис. 1Б; 1В). Таким образом достигается стабильность вращения ротора. ![]()
Рис. 1. Схема работы автомата установки лопаток ротора.
Буквами показаны положения ротора:
А - при слабом ветре, Б - при умеренном ветре, В - при сильном ветре.
При изготовлении автомата установки лопаток ротора главное внимание нужно уделить тщательной балансировке всей конструкции.
Жёсткость пружины, работающей на растяжение, подбирается опытным путём. В случае необходимости устанавливаются дополнительные грузы на стороны лопаток, обращённые к оси ротора; этим достигается срабатывание автомата установки при увеличении скорости вращения самого ротора.
Рис 2. Схема действия воздушного потока на лопатки ротора.![]()
Рис. 3. Ветряной двигатель в сборе:
1 - верхняя крестовина установки лопаток ротора; 2 - лопатки ротора; 3 - нижняя крестовина лопаток ротора; 4 - тяга-балансир, 5 - крестовина автомата установки лопаток, 6 - пружина, 7 - вал ротора диаметром 30 мм, 8 - основание ветродвигателя, 9 - шкив.![]()
Рис. 4. Крепление лопаток ротора:
1 - лопатка, 2 - верхняя крестовина, 3 - нижняя крестовина, 4 - втулки, 5 - гайки с шайбами, 6 - болты с гайками и шайбами.![]()
Рис 6. Крестовина автомата установки лопаток:
1 - планка крестовины, 2 - втулка.![]()
Рис. 7. Нижняя крестовина лопаток ротора в сборе:
1 - планки крестовины, 2 - втулка крепления лопаток, 3 - подкосы, 4 - втулка оси.![]()
Рис 8. Верхняя крестовина крепления лопаток ротора в сборе:
1 - планки крестовины, 2 - втулки крепления лопаток, 3 - втулка оси.![]()
Рис. 9. Лопатки ротора.
Рама привода ветряного двигателя изготавливается из стальных уголков 50X50X5. Площадки рамы для установки корпусов подшипников вырезаются из стального листа толщиной 5 мм. Подшипники можно использовать следующих номеров: № 106 или № 206. Корпуса подшипников привариваются на площадки рамы. Причём нижняя площадка делается подвижной - для центровки вала ротора.
Источник информации: МК 7 1992